FALSE CEILING

Other Chapters

  • Q1: Define False Ceiling.
    Ans: False ceiling is a suspended ceiling system provided below the main ceiling of any interior of the building.
  • Q2: Define the purpose of False Ceiling?
    Ans: The purposes are as follows:
    • ➔ It improves aesthetic appearance.
    • ➔ Hides electrical cabling.
    • ➔ Provides space for recessed lights.
    • ➔ Hides ducting.
    • ➔ Reduce the volume of the room.
    • ➔ Provides insulation from heat.
    • ➔ Acoustical improvement.
  • Q3: Name basic components of False Ceiling.
    Ans: The components are:
    • ➔ Bolts
    • ➔ Hanging poles
    • ➔ Square Panels
    • ➔ Wall Angles
    • ➔ Channels
  • Q4: Write the advantages of False Ceiling.
    Ans: The advantages are as follows:
    • ➔ It provides fire protection.
    • ➔ It provides a smooth, homogeneous surface to the ceiling.
    • ➔ It is aesthetically appealing.
    • ➔ Hides unpleasant appearance.
    • ➔ It helps in acoustical treatments.
  • Q5: Define Plenum Space.
    Ans: The area above the dropped ceiling is called the plenum space, as it is sometimes used for HVAC air return. The plenum space is also very commonly used to conceal piping, wiring, and/or ductwork.
  • Q6: Write some disadvantages of False Ceiling.
    Ans: Following are some disadvantages:
    • ➔ The biggest disadvantage is that the plenum space may breed pests.
    • ➔ A false ceiling cannot be used for low height rooms.
  • Q7: Name the commonly used False Ceilings.
    Ans: Three most common types are:
    • ➔ Gypsum board false ceiling.
    • ➔ P.O.P false ceiling.
    • ➔ Mineral fiber board false ceiling.
  • Q8: Define Gypsum False ceiling.
    Ans: Gypsum is a soft, light weight hydrated sulfate of calcium. The gypsum false ceiling consists of gypsum boards that are being supported by an iron framework. It is available in variable thickness and sizes as well.
  • Q9: Define POP False Ceiling.
    Ans: Plaster of Paris (POP) is commonly used for constructing false ceilings. Gypsum, which gives out water when heated, makes POP. The most important feature of a false ceiling’s beauty is cove lighting. It is an indirect form of artificial light.
  • Q10: What do you know about Glass False Ceiling?
    Ans: Glass is a non-crystalline material. It has a general property of being brittle and transparent. The glass being used is fiber glass for the purpose of a false ceiling. Glass is an insulator and also is a fire retardant material.
  • Q11: What do you know about Wooden False Ceiling?
    Ans: A wooden false ceiling is used very commonly these days and has a very pleasant impact to the viewer's eyes. Hollow wooden blocks, or wooden panels, or wooden boards can be used to make a wooden false ceiling.
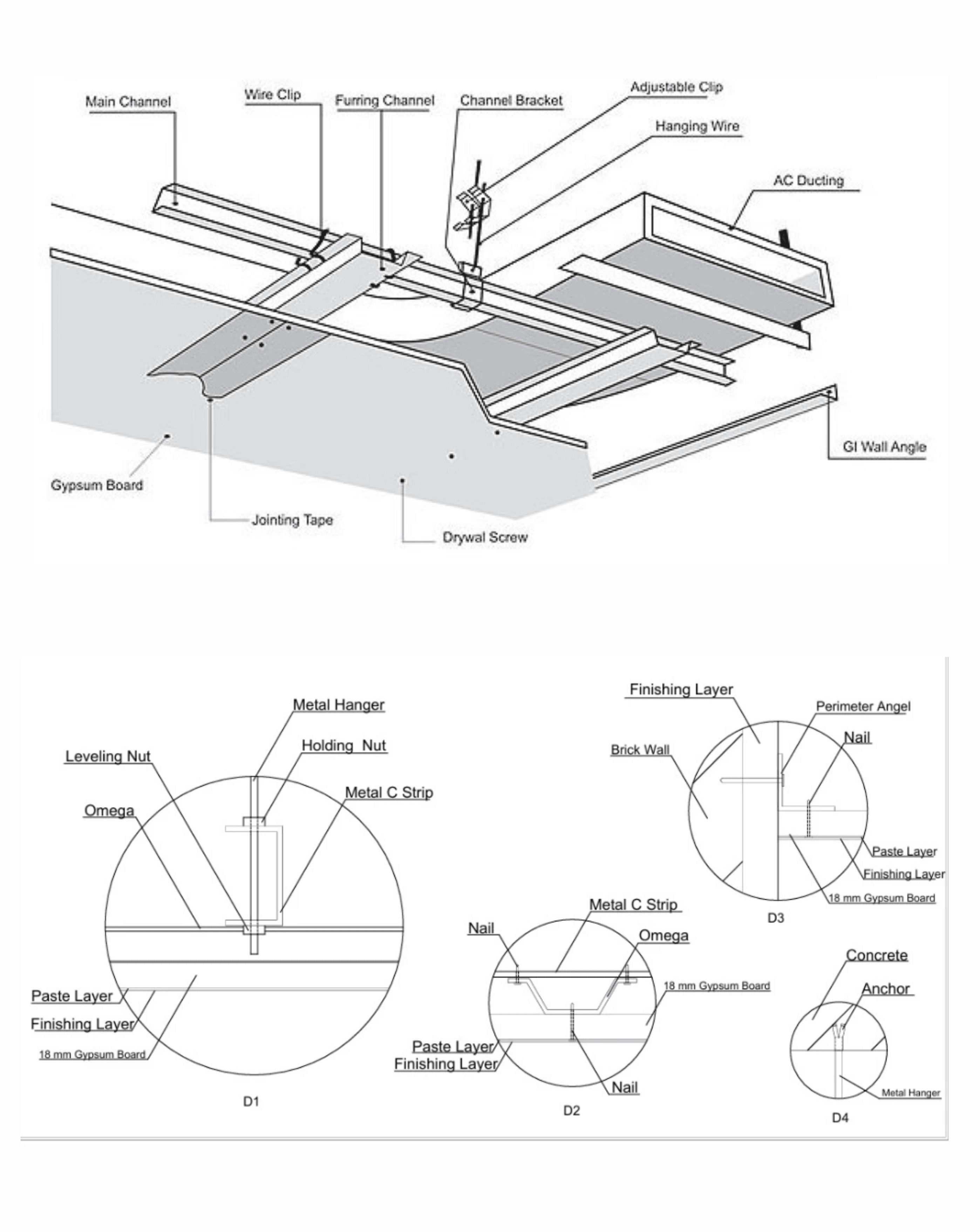
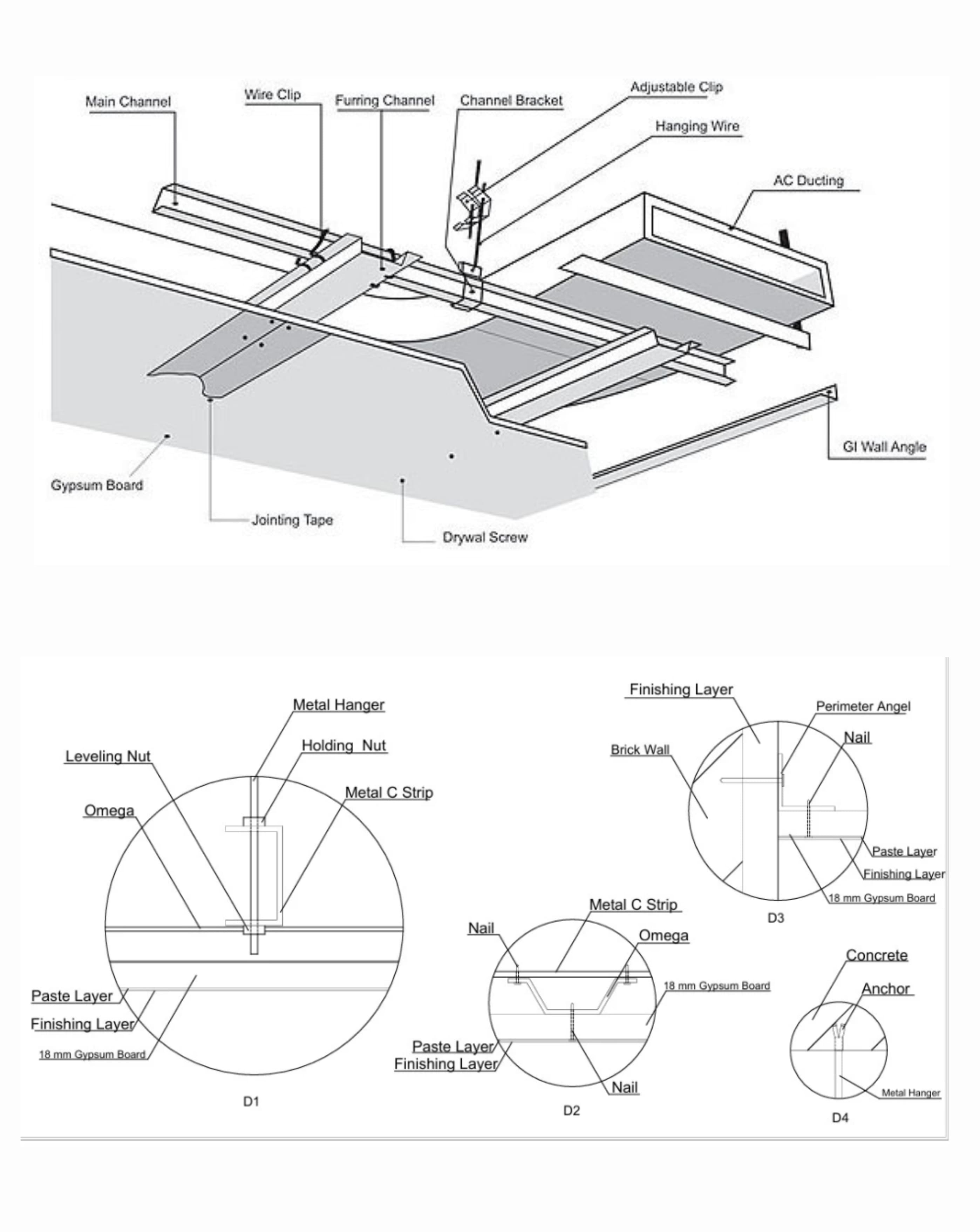
  • Q12: Write the installation process of the false ceiling.
    Ans: False ceiling installation involves fixing a lightweight framework (usually metal channels or wooden battens) suspended from the main ceiling using hangers. Ceiling boards or panels (such as gypsum, POP, or PVC) are then attached to the framework, joints are finished, and the surface is painted or decorated as required. This creates a neat, level surface and can conceal wiring, ducts, and lighting fixtures.
  • Q13: Name the materials used in False Ceiling.
    Ans: Common materials used in false ceilings include:
    • ➔ Gypsum boards
    • ➔ Plaster of Paris (POP)
    • ➔ Mineral fiber boards
    • ➔ Fiber glass
    • ➔ PVC panels
    • ➔ Wood panels
  • Q14: Which false ceiling is best for kitchens?
    Ans: PVC ceilings are mostly used in kitchens.
  • Q15: Define Soffit.
    Ans: Soffit is the underside or bottom surface of any architectural surface like beam, arch etc.
  • Q16: What is the use of Rawl Plug?
    Ans: A Rawl Plug is used to provide a secure fixing for screws in materials like brick, concrete, or plaster. It prevents the screw from loosening or pulling out.
  • Q17: Explain the process of Galvanization.
    Ans: Galvanization is the process of coating iron or steel with a thin layer of zinc to protect it from rusting and corrosion.
  • Q18: Name the wood used for False Ceiling.
    Ans: The wood used for false ceiling is:
    • ➔ Plywood
    • ➔ Teak
    • ➔ Cedar
  • Q19: Name the metals used for False Ceiling.
    Ans: The metals used for false ceiling are:
    • ➔ Aluminium
    • ➔ Gulvanized Iron
  • Q20: What is the purpose of Plenum Space?
    Ans: The basic purpose of Plenum Space is to hide ducts and wiring.
  • Q21: What is the basic component of Gypsum?
    Ans: The basic component of gypsum is calcium sulfate dihydrate (CaSO₄·2H₂O).
  • Q22: Differentiate between ceiling and false ceiling.
    Ans: A ceiling is the upper surface of a room that forms the underside of the floor's roof while false ceiling is an artificial ceiling suspended below the main ceiling.
GCT notes/Book-Exercise